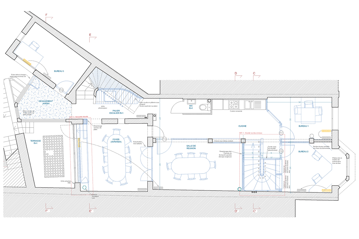
Restructuration d’une maison sur les flancs de la colline de Belleville pour l’installation du siège de la Fédération Française des Clubs Alpins et de Montagne.
Maître d’Ouvrage : privée (FFCAM) / 121 boulevard Sérurier, Paris 19ème / Budget env. 500 k€HT / chantier en cours






