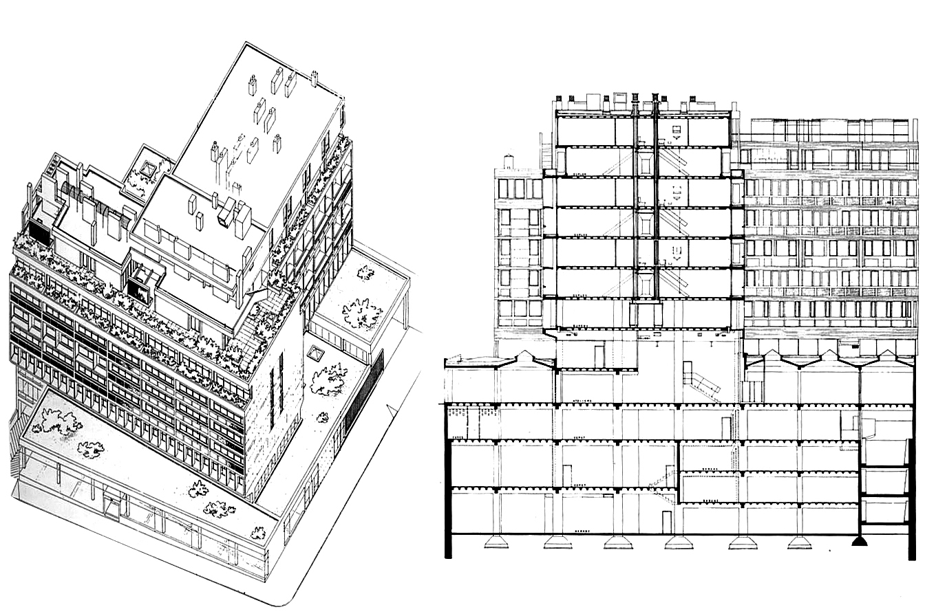
Réhabilitation thermique d’un immeuble brutaliste (Louis Miquel, 1965). 65 logements.
R+7 sur dalle active (locaux d’activités) – Façades à loggias en béton armé.
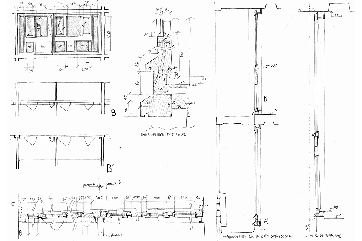
Ravalement complet / Remplacement des menuiseries d’origine par des menuiseries en bois performantes : bois localement sourcé (Cèdre des Pyrénées) / Mise en place d’un protocole de réemploi des menuiseries déposées / Création d’un système de ventilation naturelle assistée. Travaux en site occupé et présence d’amiante.
Maître d’Ouvrage privée / Budget: 2,25M€ HT / Chantier en cours
Partenaires : LEV Greenta (Thermique, Fluides & CVC) / Alliance (Expert amiante)





