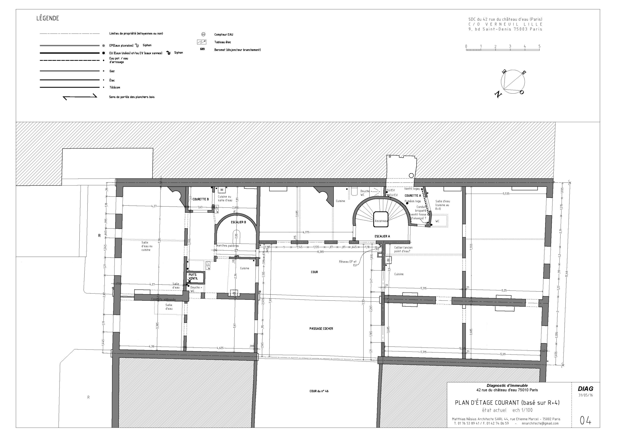
Immeuble env 1830-40 , R+5+combles sur un niveau de caves voûtées, 2 corps de bâtiments, une cour et deux courettes, 2 cages d’escalier / Façades sur rue en pierre de taille, pans de bois et moellons sur cours + planchers bois / 22 appartements + 3 locaux commerciaux à rez-de-chaussée
Le diagnostic technique comprend : l’analyse de l’état des parties communes, le diagnostic de la structure constructive et des réseaux, une proposition de plan pluriannuel de travaux avec estimation de leur coût sur les 10 prochaines années.
Maître d’Ouvrage: Syndicat Des Copropriétaires / 2017




