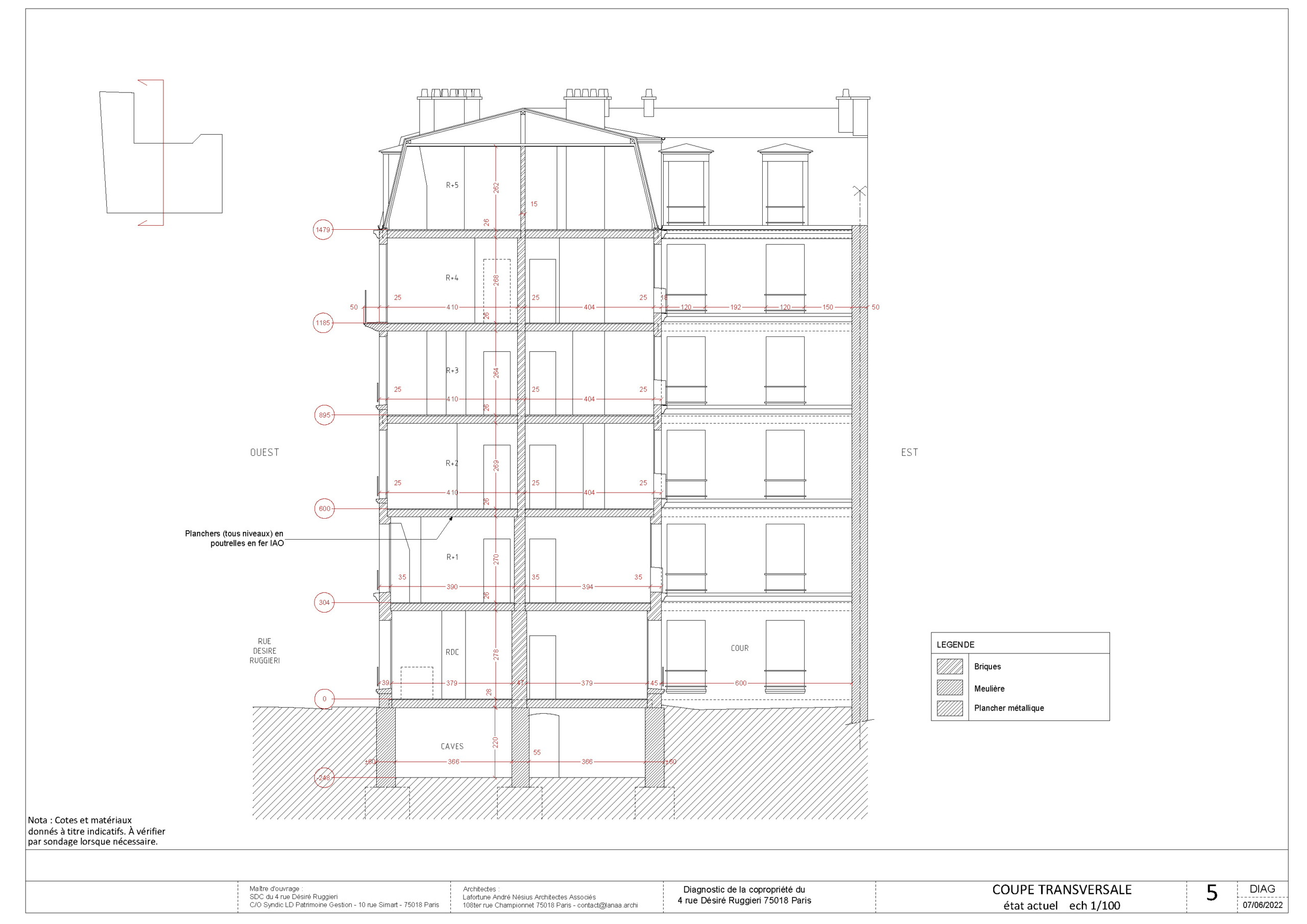
Immeuble env 1890 , R+4+combles sur un niveau de caves / Façades sur rue et cour en briques sur soubassement en meulières + planchers fer / 14 appartements + 2 locaux commerciaux à rdc
Le diagnostic technique comprend : l’analyse de l’état des parties communes, le diagnostic de la structure constructive et des réseaux, une proposition de plan pluriannuel de travaux avec estimation de leur coût sur les 10 prochaines années.
Maître d’Ouvrage: Syndicat Des Copropriétaires / 2022




